Geschichte der Färberei
In diesem Gebäude war die bedeutendste Chemnitzer Färberei ansässig.
01 Haase Fabrik
1801
Färber Peter Gehrenbeck erhält einen Bauplatz von der Stadt auf der damaligen Kunstbleiche.
1820
Das Wohnhaus wird errichtet.
1843/88
Das Wohnhaus wird um zwei Fensterachsen erweitert.
1912/22/25
Es finden weitere Erweiterungen statt.
1908/09
Bau eines modernen Fabrikgebäudes in Stahlkonstruktion mit Klinkerfassade in der Rochlitzer Straße.
1910
Der gelernte Färber Theodor Haase erwirbt den Betrieb.
1922
Der markante Wasserturm und der 60 m hohe Schornstein entstehen.
1939
Im Betrieb arbeiten 200 Mitarbeiter.
1945
Beim Bombenangriff im März werden 88% der Gebäude schwer zerstört.
1981
Der Betrieb wird in das Strumpfkombinat ESDA Thalheim eingegliedert.
1990
Der Betrieb wird stillgelegt. Eine private Chemnitzer Investorengruppe plant Loft-Wohnungen.
ab 2009
Kauf der Grundstücke und Umbau bis 2015.
Tradition trifft auf Innovation
Die ehemalige Theodor Haase-Fabrik wurde in drei Jahren denkmalgerecht saniert, durch einen modernen Neubau ergänzt und zu einem zeitgemäßen Firmenstandort entwickelt. Historische Elemente wie die Krananlage wurden behutsam aufgearbeitet und in das Gestaltungskonzept integriert. So entstand ein einzigartiges Zusammenspiel aus industrieller Vergangenheit und moderner Arbeitswelt.
01 Haase Fabrik
Vermietung
Wir bieten Ihnen eine moderne Mietfläche in zentraler Lage – flexibel nutzbar und bestens ausgestattet. Im Folgenden finden Sie alle relevanten Informationen auf einen Blick.
Ausstattung der Immobilie
Die Immobilie überzeugt durch eine hochwertige Ausstattung, moderne Technik und durchdachte Zusatzangebote – ideal für Unternehmen, die Wert auf Komfort, Effizienz und Flexibilität legen.
Ausstattung der Flächen:
– Hochwertiger Parkettboden
– Fußbodenheizung für angenehmes Raumklima
– Klimaanlage sowie Be- und Entlüftungsanlage mit Luftbefeuchtung
– Sonnenschutzsysteme: Jalousien und Sonnensegel
– Moderne Sanitärbereiche mit hochwertiger Ausstattung
– Personen- und Lastenaufzüge (bis zu 4 t Traglast)
– Barrierefreie Zugänge, rollstuhlgerecht gestaltet
Sicherheitsausstattung:
– Einbruch- und Brandmeldeanlage
– Zutrittskontrollsystem mit Transpondertechnologie
– Videoüberwachung und Wachschutz
Technik & Infrastruktur:
– Strukturierte Netzwerkverkabelung mit hoher Leistungsfähigkeit
– Eigene TRAFO-Station sowie Mittelspannungs-, Hauptverteilung für eine zuverlässige
Energieversorgung
Zusätzliche Angebote
– Moderne Shared Spaces außerhalb der Mietfläche – ideal für Meetings, Workshops
oder kreative Zusammenarbeit
Shared Spaces
Diese Immobilie vereint historischen Charme mit modernem Arbeitskomfort: Die stilvolle Klinkerfassade trifft auf lichtdurchflutete Open Space-Bereiche, die speziell für die Ansprüche moderner Unternehmen konzipiert wurden.
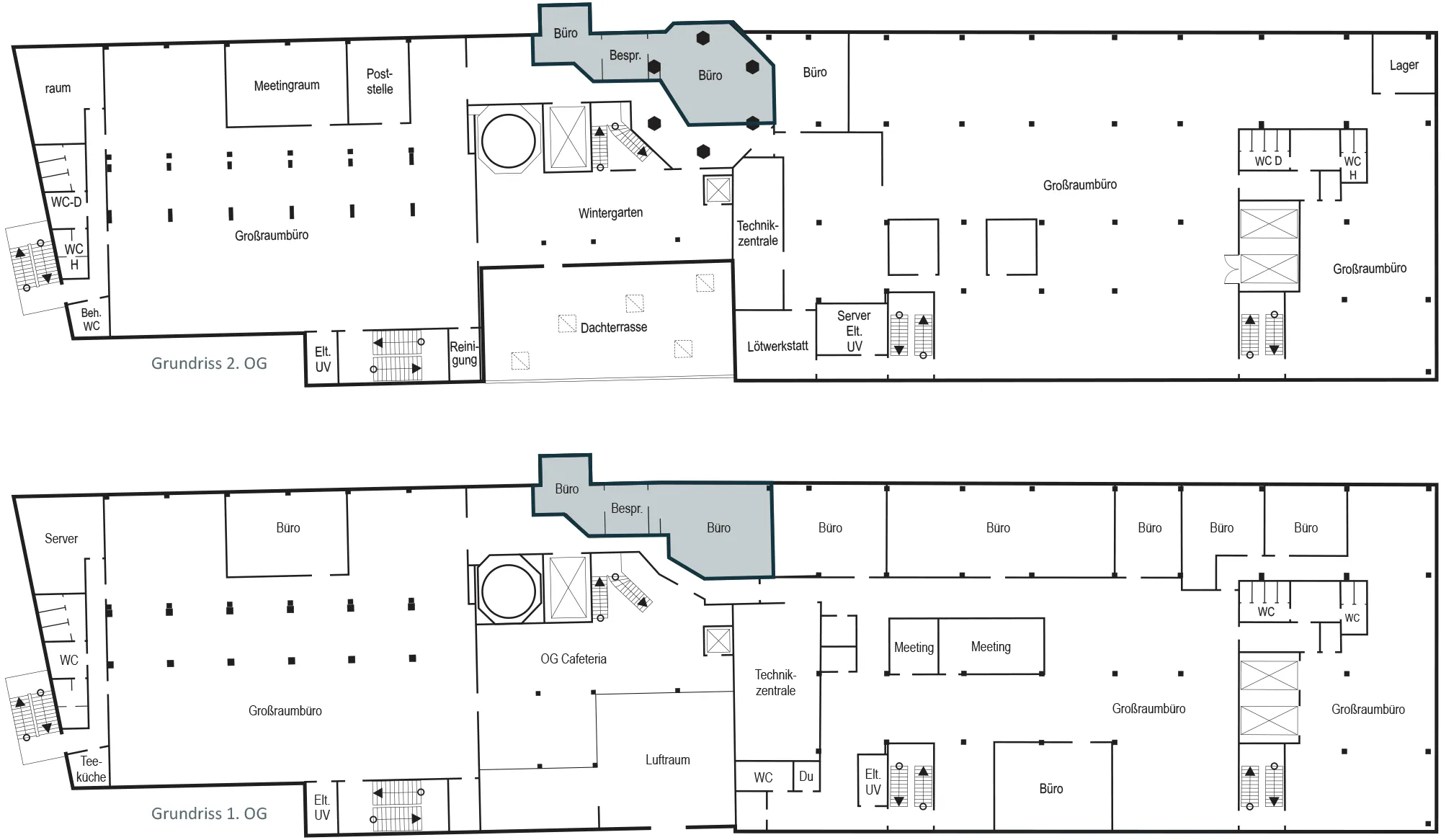
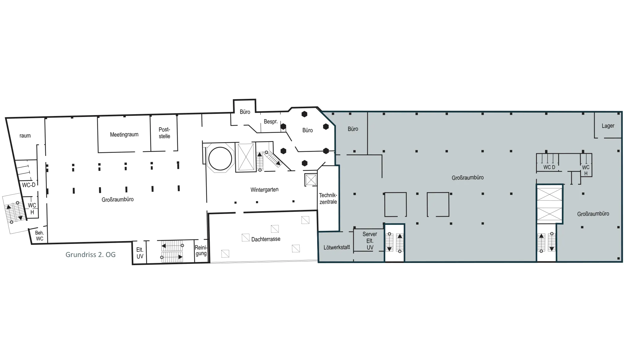
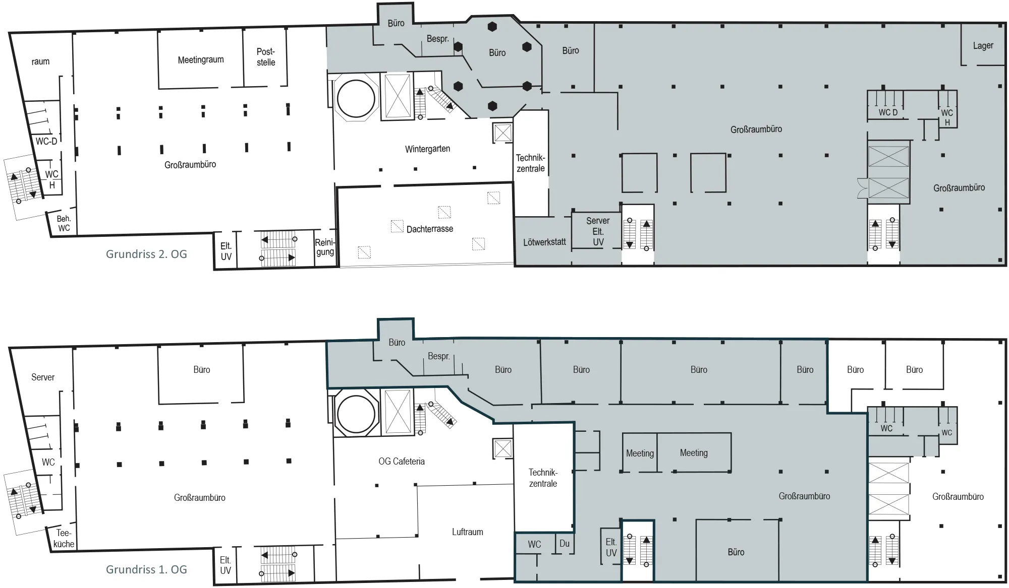
Das Herzstück des Gebäudes bildet der großzügig gestaltete Mittelbau mit bis zu 1.065 m². Hier vereinen sich bauliche Offenheit und flexible Arbeitsbereiche zu einem Zentrum des Hauses.
Ein Highlight ist der lichtdurchflutete Wintergarten mit direktem Zugang zur Terrasse. Hochwertig ausgestattete Meetingräume führen auf eine exklusive Rooftop-Terrasse mit Blick über die Stadt – perfekt für Besprechungen in entspannter Atmosphäre oder erholsame Pausen.
Die gelungene Verbindung von Geschichte, modernem Design und funktionaler Ausstattung verleiht dem Objekt einen einzigartigen Charakter – repräsentativ, offen und zukunftsorientiert.
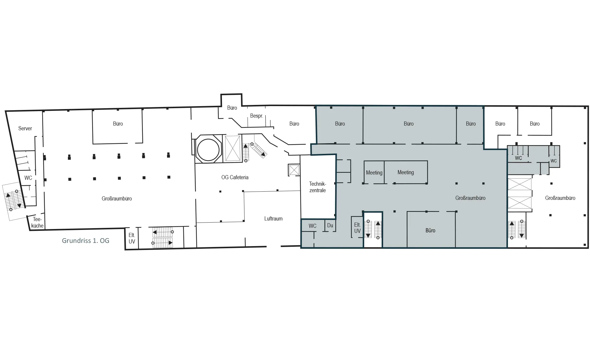
Meetingcenter für bis zu 600 Personen
Ob Workshops im kleinen Kreis, produktive Meetings oder größere Veranstaltungen – unser modernes Meetingcenter bietet flexible Raumlösungen für unterschiedlichste Anforderungen.
In sieben flexibel gestaltbaren Meetingräumen ist genügend Raum für konzentriertes Arbeiten, Austausch und Zusammenarbeit. Eine ideale Umgebung für neue Impulse im Arbeitsalltag. Dank mobiler Trennwände lassen sich die Räume bei Bedarf zu einer offenen Fläche verbinden, die Veranstaltungen mit bis zu 600 Personen ermöglicht.
Campus - Raum für Begegnung, Bewegung und Erholung
Der Außenbereich präsentiert sich als moderner Campus mitten in der Stadt – ein Ort, der Arbeiten, Entspannen und den Austausch auf ideale Weise verbindet.
Das begrünte Atrium lädt zum Durchatmen ein und dient als offener Treffpunkt für informelle Gespräche oder kurze Pausen.
Für sportliche Abwechslung sorgt ein eigener Basketballplatz, der Bewegung und Teamgeist fördert. Ein diskret integrierter Raucherbereich bietet Rückzugsmöglichkeiten, ohne das Gesamterlebnis zu stören. Der Campus schafft damit eine inspirierende Umgebung, die städtisches Arbeiten mit Lebensqualität im Grünen verbindet.
Restaurant mit unserem Partner „Nomad“
Auf zwei modern gestalteten Etagen lädt ein Restaurant mit Self-Service-Konzept zum Verweilen ein – betrieben von „Nomad Chemnitz“ und ideal für eine genussvolle Auszeit im Arbeitsalltag.
Mit einem abwechslungsreichen, frischen Mittagsangebot bietet es ideale Verpflegungsmöglichkeiten für Mitarbeiter, Besucher und Gäste. Die dazugehörige Außenterrasse lädt bei schönem Wetter zum Verweilen ein und schafft eine angenehme Verbindung zwischen Arbeiten und Genießen. Ein Ort der Begegnung und Entspannung direkt im Herzen des Gebäudes.
Haase Fabrik – Ihre Partylocation
Die Haase Fabrik bietet den perfekten Rahmen für unvergessliche Firmenevents – von der stilvollen Weihnachtsfeier über Jubiläen bis hin zu lockeren After-Work-Veranstaltungen.
Auf mehreren Ebenen entsteht eine besondere Atmosphäre, die zum Feiern, Netzwerken und Genießen einlädt. Die außergewöhnliche Architektur trifft auf moderne Ausstattung – ideal für Events.
Auch der Außenbereich kann in die Veranstaltung integriert werden – für entspannte Feiermomente im Freien oder als stilvolle Erweiterung Ihrer Eventfläche.
Villa - Vier Möglichkeiten, ein besonderer Ort
Die historische Fabrikanten-Villa auf dem Gelände verbindet stilvolles Ambiente mit vier neuen Nutzungsideen – ein Ort für Begegnung, Inspiration und Vielfalt.
Unsere Villa – 4 Möglichkeiten
– 11 hochwertige Einzelzimmer und Mehrbettzimmer
– Eventküche für Teamabende
– hauseigener Fitnessbereich
– Massagebereich
Parking - Bequem ankommen – parken direkt vor Ort
Für Mitarbeitende stehen zwei großzügige Parkplatzflächen mit insgesamt bis zu 200 Stellplätzen zur Verfügung. Die Lage der Parkmöglichkeiten sorgt für kurze Wege und einen komfortablen Start in den Tag.
Ein besonderes Highlight:
Die beiden Ufer sind durch eine interaktive Waben-Brücke miteinander verbunden – ein architektonisches Statement und gleichzeitig ein inspirierender Weg zur Arbeit, der Funktion und Design miteinander vereint.
Starke Unternehmen unter einem Dach
Seit mehreren Jahren sind 100 % der verfügbaren Flächen dauerhaft an eine vielfältige Mischung aus mittelständischen Unternehmen und internationalen Konzernen vermietet. Diese Kontinuität spricht für die Qualität des Standorts und das Vertrauen unserer Partner in die Infrastruktur und das Umfeld.
Unsere aktuellen Mietpartner
Zu den aktuellen Mietpartnern zählen unter anderem:
IBM
ist ein globale Technologiedienstleister
mit Fokus auf Digitalisierung und IT-Infrastruktur.
Kyndryl
ist ein IT-Dienstleistungsunternehmen
mit Spezialisierung auf Managed Infrastructure
Services.
SIEMENS
ist eines der weltweit bedeutendsten Technologieunternehmen.
Visual World
ist ein innovatives Unternehmen im Bereich visueller Kommunikation und Medienproduktion.
Baby Smile
ist ein führendes Unternehmen im Bereich der Neugeborenenfotografie.


Kontakt zur VermietungKaiser und GüldenImmobilienmaklergesellschaft bR
Jens Gülden
Tel.: 0172 – 35 45 044
E-Mail: info@mzwo-immobilien.de







































































